444,00m² dituen Bulegoaren Alokairua edo Salmenta Azkoitiako OINARTXO Industrialdean (Gipuzkoa)

Oinartxo industri poligonoa – Azkoitia

  • Mota: Bulegoaren Alokairua edo Salmenta
  • Gunea: OINARTXO Industrialdea
  • Helbidea: Lugar Ugarte Industrialdea, 129, (20720) Azkoitia - Gipuzkoa

Eraikuntza-Ezaugarriak

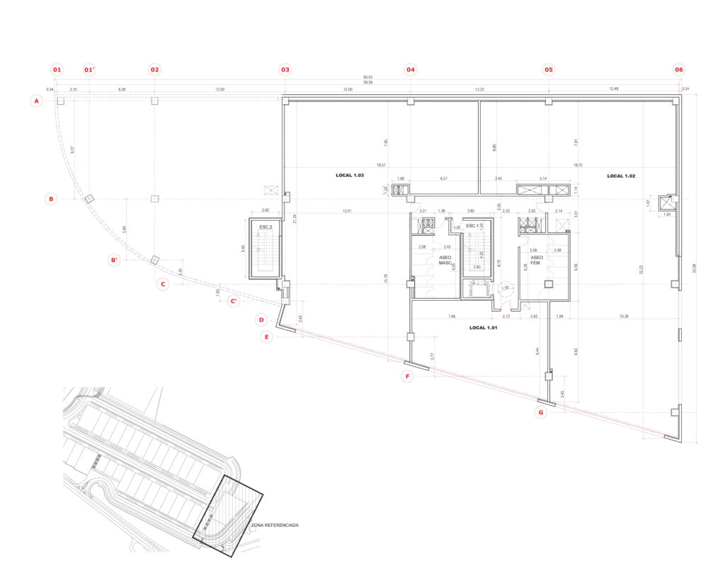
  • Azalera, guztira: 444,00m²
  • Aparkalekuak: 3

Instalazioak

  • Argindar-hargunea
  • Telekomunikazio-hargunea
  • Ur-hargunea
  • Gas-hargunea
  • Ur beltzen hargunea
  • Suteen aurkako sarea
  • Klimatizazioa
  • Autobiderako irteera
  • Aparkaleku publikoa
  • Klimatizazioaren aurreinstalazioa
  • WC komunitarioak
  • Sarbide-kontrola
  • Igogailua

Mapa

Lugar Ugarte Industrialdea, 129, (20720) Azkoitia - Gipuzkoa
Mapa ikusi Googlen

Harremanetarako informazioa

Interesa baldin baduzu,
jar zaitez gurekin harremanetan

Beste bulegoak Gipuzkoan