En Alquiler o Venta
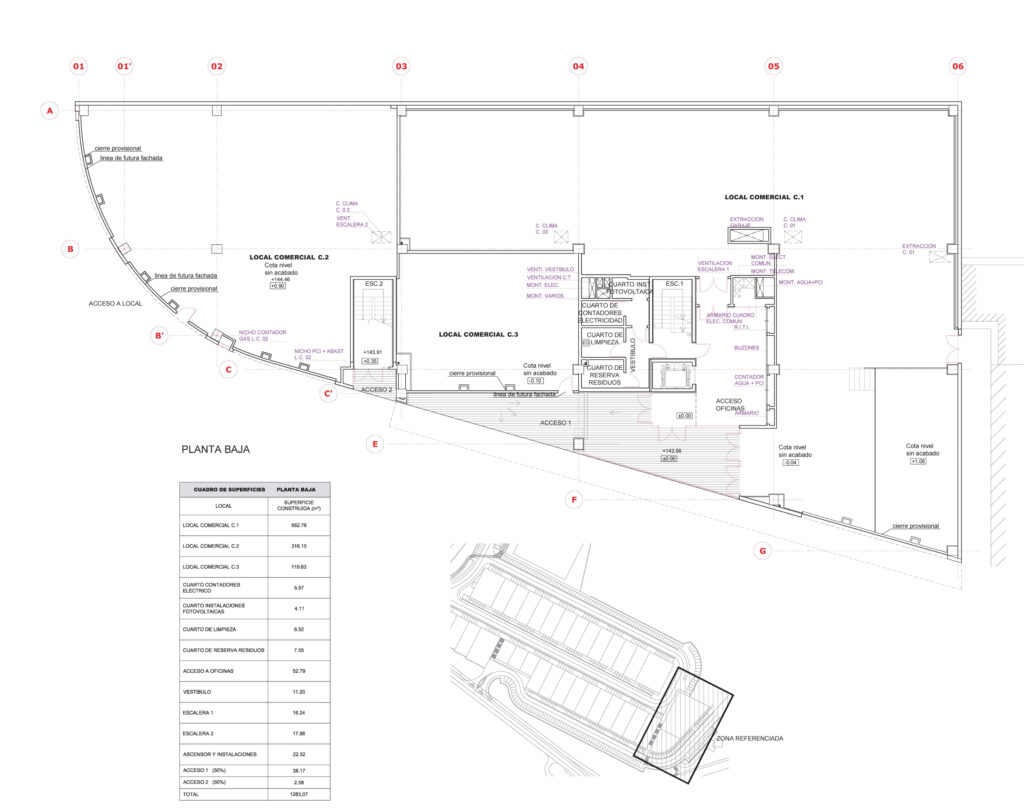
LOCAL C2 (Oinartxo )
316,00m²
Polígono Industrial UGARTE - Azkoitia

Polígono Industrial Ugarte (Oinartxo – Azkoitia) LOCAL C2 planta 0

  • Tipo: Alquiler o Venta de Local
  • Zona: Polígono Industrial UGARTE
  • Dirección: Lugar Ugarte Industrialdea, 129, (20720) Azkoitia - Gipuzkoa

Caractertísticas constructivas

  • Superficie total: 316,00m²
  • Plazas de aparcamiento: 4

Instalaciones

  • Acometida eléctrica
  • Acometida telecomunicaciones
  • Acometida agua
  • Acometida gas
  • Acometida fecales
  • Red incendios
  • Climatización
  • Salida Autopista
  • Transp. Público
  • Preinstalación de climatización

Mapa

Lugar Ugarte Industrialdea, 129, (20720) Azkoitia - Gipuzkoa
Ver en Google Maps

Datos de contacto

Si te interesa, contáctanos

Más locales en Gipuzkoa