257,85m² dituen Pabiloiaren Alokairua edo Salmenta Zamudioko IBAIA eraikinean - Pinoa industrialdea (Bizkaia)

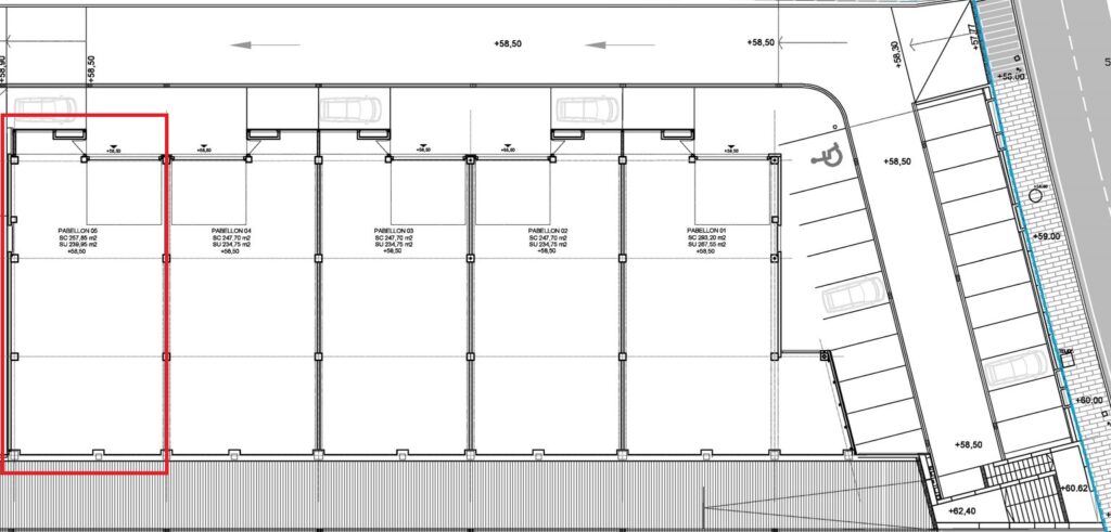
Pabellón 05 – Ibaia Polígono Pinoa – Zamudio

 

Pabellón de uso industrial situado en planta baja de edificio. Tiene una superficie de 257,85 m² construidos y una edificabilidad para posible entreplanta de 126,39 m². Linda al Frente, por donde tiene su acceso, con la calle; Derecha, con cierre perimetral del edificio; Izquierda, local denominado 04 y Fondo, muro de contención.

Eraikuntza-Ezaugarriak

  • Azalera, guztira: 257,85m²
  • Solairuarteko azalera eraikigarria: 126.39 m²
  • Altuera librea: 5,10 m
  • Zolarriaren sostengu-ahalmena: 1500 Kg/m²
  • Aparkalekuak: 4

Instalazioak

  • Argindar-hargunea
  • Telekomunikazio-hargunea
  • Ur-hargunea
  • Ur beltzen hargunea
  • Suteen aurkako sarea
  • Zuntz optikoa
  • Sarbide-kontrola

Mapa

Polígono Industrial Pinoa Edificio Ibaia, (48500) Zamudio - Bizkaia
Mapa ikusi Googlen

Harremanetarako informazioa

Interesa baldin baduzu,
jar zaitez gurekin harremanetan

Beste pabiloiak Bizkaian