En Alquiler o Venta
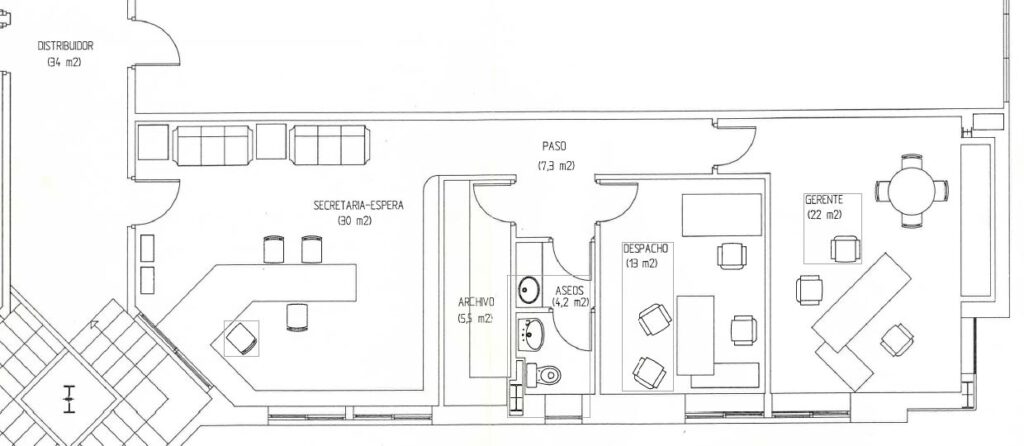
Bulegoa/Oficina 9098 m2
91,00m²
Poligono Industrial IGORREKO Industrialdea - Igorre

Poligono Igorreko Industrialdea A-1, Oficina 1 (Igorre)

Caractertísticas constructivas

  • Superficie total: 91,00m²
  • Plazas de aparcamiento: 1

Instalaciones

  • Acometida eléctrica
  • Acometida telecomunicaciones
  • Acometida agua
  • Acometida fecales
  • Red incendios
  • Climatización
  • Transp. Público
  • Aseos
  • Aseos comunitarios
  • Mobiliario

Mapa

Igorreko Ind. Kalea, 1A,, (48140) Igorre - Bizkaia
Ver en Google Maps

Datos de contacto

Si te interesa, contáctanos

Más oficinas en Bizkaia